Skip to the content
Alwathaaeq Supervision Department  Projectslogo darklogo light
Alwathaaeq Supervision Department  Projects
Alwathaaeq Supervision Department  Projects
  • Official Website.
  • Supervision Department
  • Contact us
  • Know More…
    • Contact Channels
    • Office Location
    • Official Website
Date:

2025

Location:
Riyadh -KSA
Building Type :
Commercial Building
Area:
43791,4 m²
Status :
Under Construction
Supervised By :
Alwathaaeq Consulting Engineers

Ben Asakr

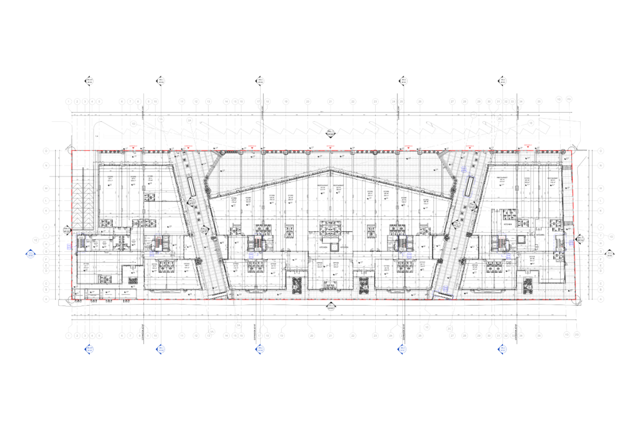
Department: Supervision – Ben Asakr Project
Alwathaaeq Consulting Engineers proudly leads the full supervision of the Ben Asakr Commercial Project, a landmark development located in Riyadh. Covering a total land area of 43,791.4 m², this project is designed to accommodate a dynamic mix of commercial spaces, reflecting the modern business demands of the capital city.

Our supervision team is entrusted with overseeing every stage of execution — from civil works and structural compliance to MEP systems, finishing quality, and adherence to safety and municipal regulations. We provide continuous site presence, contractor coordination, progress tracking, and technical inspections to ensure the project meets the highest standards of engineering and operational excellence.

With a proven track record in supervising complex developments, Alwathaaeq Consulting Engineers ensures that the Ben Asakr Commercial Project is delivered with precision, transparency, and unmatched professional integrity — setting a new benchmark for commercial real estate in Riyadh

Alramz Alrayan
Eithar Almaskan
Rabia Almalqa
Tanal 10
d

Housing

  • Official Website.
  • Supervision Department
  • Contact us
  • Know More…
    • Contact Channels
    • Office Location
    • Official Website
Arch.D
Supv